
Making sure that each customer feels welcome and has a great dining experience is the goal of any restaurant owner. However, achieving this goal requires more than a smiling waitress and a perfectly cooked steak. Your choice of restaurant table tops and smart seating/layout planning matter just as much. Twenty-eight years ago, the American Disabilities Act laid out regulations that required a welcoming place for everybody in every restaurant. These regulations affect not only the restaurant design and floor plan, but the seating arrangements as well—see our process for how we design, build, and finish tops that fit real-world ADA spacing.
So, what does this all mean for your restaurant? To get started, let’s take a crash course on the ADA—our Restaurant Table Tops Buyer’s Guide also covers sizing and clearance basics you can apply below.
What is the Americans with Disabilities Act (ADA)?
This Act was signed into law in 1990 and makes it illegal to discriminate on the basis of disability in the areas of employment, public service, public accommodations, and commercial facilities. The area that pertains to seating in a restaurant or bar is Title III. This Title states that “…no individual shall be discriminated against on the basis of disability in the full and equal enjoyment of the goods, services, facilities, privileges, advantages, or accommodations of any place of public accommodation by any person who owns, leases, or operates a place of public accommodation.”
Newer facilities, constructed after July 26, 1990, must make their facilities readily accessible. Older facilities, constructed before July 26, 1990, must remove physical barriers if readily achievable or easily accomplished without much difficulty or expense. The ADA regulations do not define the specifics about the degree of “difficulty” or “expense”; therefore, judgment is made on a case-by-case basis. It is possible that a facility does not have to remove a barrier because the law will consider the nature and cost, as well as the overall financial resources of the facility.
The goal of the ADA is to give every person the opportunity to benefit from the services and goods that a business may offer, as well as for the business to benefit from the patronage of every citizen.
Which Sizes of Restaurant Table Tops are ADA Compliant?
See the sizing and seating clearance guidelines in our Buyer’s Guide, then choose the right restaurant table tops for your layout.


A typical two or four seat restaurant table with a single center base is not ADA accessible. The above rendering shows a table on a pedestal base. There is NEVER a Time when a pedestal base will work for an ADA compliant table. You need a clearance of twenty-seven inches at the floor level. The smallest base plate is located on a bolt-down base, and you would need a sixty-inch table to achieve that clearance and unfortunately there is no bolt-down base that will support a sixty-inch table.


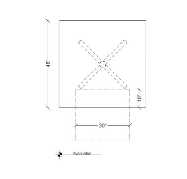
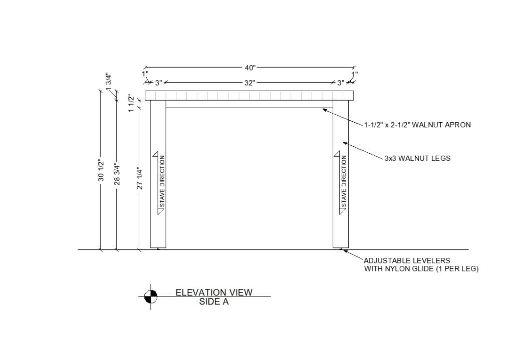
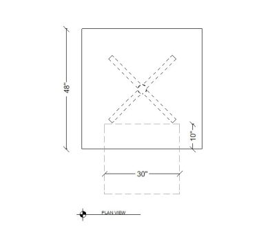
The above drawings we have created are the most common solution for ADA accessible restaurant table tops. To be ADA accessible, a handicap accessible restaurant table should have legs at the four corners or two prong end style bases, both of which we at Timeworn can provide. You must also provide a minimum of twenty-seven” of clearance from the floor to the bottom of the table top and should have a minimum of thirty-six” of uninterrupted space across the side of the table.
Our most requested restaurant table top sizes for ADA accessibility are 30” x 48” or 36” x 48”. Our team can provide either a cantilever to attach these tables directly to a wall or, as mentioned previously, we can utilize bases on either end allowing for a clear space exceeding thirty-six” on both sides of the table. You can learn more about the 2 prong end style bases as well as the cantilever style on our Restaurant Table Bases page. Below are pictures of end-style bases as well as photos of the cantilever style base:





Do I Need to Post Signage Indicating Which Restaurant Dining Tables are Designated ADA Compliant?
From what our team has found, regulations do not require a business owner to post signage indicating restaurant table ADA compliance. However, some states do require an International Symbol of Accessibility. With this in mind, we recommend that all restaurant owners post such signage on their applicable restaurant tables as good practice. Here is an example of a small wheel-chair accessible symbol that is small enough to attach to the edge of our wooden restaurant tables.How Many ADA Accessible Seats Must be Provided at a Restaurant?
When your restaurant or bar has 20 tables or more, it is required that 5% of the total number of seats in your restaurant be ADA accessible. If your restaurant or bar has less than 20 tables, you need exactly one table to be ADA accessible. It is worth noting that if your location has outdoor seating those seats must be included in your calculations.If you need help deciding where to put your ADA compliant restaurant tables in your restaurant’s floor plan, or you simply need help in determining the number of table tops required, please be sure to contact an architect, designer, or your local building department. For general ADA recommendations, Timeworn Wood will also be able to help.
Please Note: the above is a description of what we perceive to be fact based on the public information available for Title III of the Americans with Disabilities Act. The Timeworn team highly recommends that you familiarize yourself with the information, which can be found at www.ada.gov/taman3.html. Once you feel you are ready to proceed, you can submit a set of drawings with your local building inspector for review and approval. Specific ADA requirements may vary by city or state so it is important to review this information with your architect, designer, or inspector.To ensure accessibility for all patrons, a restaurant must be designed in accordance with the Americans with Disabilities Act (ADA) standards. Here are five resources to help you design an ADA-compliant restaurant:
ADA.gov (Official ADA Website):
Website: Government ADA Site
The official website of the U.S. Department of Justice provides comprehensive information on ADA standards, including the ADA Accessibility Guidelines (ADAAG). It offers detailed guidance on various aspects of accessibility in public accommodations, including restaurants.
ADA National Network:
Website: ADA National
The ADA National Network offers a wealth of resources and training materials related to ADA compliance. You can find helpful publications, webinars, and contact information for ADA experts who can answer specific questions about restaurant design and accessibility.
ADA Design Guide for Restaurants and Cafeterias:
Website: ADA Design Guides
The U.S. Access Board provides a detailed guide specifically focused on ADA standards for restaurants and cafeterias. This resource outlines requirements related to parking, entrances, dining areas, restrooms, and more.
Pocket Guide to the ADA
Amazon Link: Pocket Guide to the ADA
Book: by Even Terry Associates
This book provides valuable insights and practical advice on designing restaurants that are accessible to people with disabilities. It covers a wide range of topics, from layout and seating to signage and kitchen design.
The ADA Checklist for Existing Facilities:
“The ADA Checklist for Existing Facilities“
While this resource primarily focuses on existing facilities, it can also be useful for designing new restaurants. The book offers a step-by-step guide to help you identify and address ADA compliance issues in your restaurant design.
Always consult the most recent ADA guidelines and local building codes, as these standards are subject to change. Consider working with ADA-compliant design professionals to ensure that your restaurant meets all necessary accessibility requirements.
FAQ
What are ADA requirements for restaurant entrances?
Accessibility for people with disabilities is one of the ADA requirements for restaurant entrances. This usually entails having doorways that are at least thirty-two inches wide when the doors are opened 90 degrees, avoiding high thresholds that could obstruct wheelchair access, and providing accessible hardware such as handles. Entrances should also be free of obstructions, and if steps are present, a ramp or alternate accessible route should be provided.
How wide should restaurant doors be for ADA compliance?
Are there ADA guidelines for restaurant table heights?
Yes, ADA guidelines for restaurant table heights specify that the surface height of accessible tables and counters should be between 28 and 34 inches above the floor. At least 60% of provided seating spaces must comply with these height requirements to accommodate wheelchair users.
What is the minimum aisle width in ADA-compliant restaurants?
For accessible routes, the ADA (Americans with Disabilities Act) guidelines for aisle width in restaurants typically require a minimum clear width of thirty-six inches. This width provides enough space for people using wheelchairs or other mobility aids to move around comfortably.
How many handicapped parking spaces must a restaurant have?
The total number of parking spaces in a lot determines the number of handicapped parking spaces required for a restaurant. According to the ADA, if a parking lot has one to twenty-five spaces, at least one of them must be accessible. As the total number of spaces increases, so does the required number of accessible spaces. The ADA Standards for Accessible Design are recommended for more detailed requirements.
Are restaurants required to have ADA-compliant bathrooms?
Yes, restaurants must have ADA-compliant restrooms. This includes making restrooms accessible to people with disabilities, including wider doors, grab bars, appropriate sink and toilet heights, and enough space for a wheelchair to maneuver. To ensure accessibility for all customers, public accommodations must adhere to these standards.
What are ADA requirements for restaurant menus?
The ADA does not require restaurants to provide menus in Braille or other accessible formats. Restaurants must, however, ensure effective communication with customers who have vision impairments. This can be accomplished in a variety of ways, such as providing menus in Braille or large print, or offering staff assistance in reading the menu. The goal is to provide equal access to menu information to all customers.
How should a restaurant handle service animals?
Service animals, as defined by the ADA, must be permitted to accompany people with disabilities in all areas where customers are normally permitted. This includes the dining and public areas but not the kitchen. Service animals are not pets, but rather working animals that have been trained to perform specific tasks for a person with a disability. Restaurants cannot charge service animals additional fees or refuse service based on the presence of a service animal. They are also not permitted to inquire about the nature of the person’s disability.
What are ADA seating requirements in restaurants?
Restaurant ADA seating requirements include ensuring that a portion of the seating, typically 5% or at least one section, is accessible. This means that tables should be at a wheelchair-accessible height (usually between 28 and 34 inches from the floor), with enough knee space beneath. Pathways to and around these tables should also be accessible, with a minimum width of thirty-six inches.
How does ADA affect outdoor dining areas?
The Americans with Disabilities Act (ADA) applies to outdoor dining areas just as it does to indoor spaces. This means that people with disabilities must be able to access these areas. Key considerations include providing wheelchair-accessible pathways, providing seating options, and ensuring the outdoor area’s surface is navigable for mobility devices. Compliance with ADA guidelines is critical for ensuring that all restaurant patrons have equal access.
Are there ADA guidelines for restaurant lighting?
The ADA does not provide specific guidelines for restaurant lighting, but it emphasizes the importance of making environments accessible and usable for people with disabilities. This includes sufficient lighting to safely navigate and read menus, especially for those with visual impairments. Lighting should be adequate to illuminate pathways, tables, and other critical areas while avoiding glare or sharp contrasts, which can be difficult for those with low vision.
What is the ADA's stance on restaurant booth seating?
The ADA does not specifically address booth seating in restaurants, but it does require that a certain percentage of seating be accessible to individuals with disabilities. This typically means that if a restaurant offers booth seating, it should also provide accessible table options that accommodate wheelchairs. These tables should be of appropriate height and have adequate space around them for maneuverability.
What are ADA requirements for restaurant signage?
ADA requirements for restaurant signage include ensuring that signs identifying permanent rooms and spaces (like restrooms and exits) are legible, with obvious contrast between text and background, and use sans-serif or simple serif typefaces. These signs should also include Braille and raised characters and be mounted at specific heights and locations for simple reading by individuals with visual impairments. Additionally, directional, and informational signs should be clear and easy to read.
How can a restaurant become more ADA-friendly?
1. Make sure there are accessible entrances and exits, including ramps if necessary.
2. Make sure there is plenty of wheelchair-accessible seating.
3. Ensure that the restrooms are ADA compliant.
4. Provide menus in accessible formats (for example, large print or Braille).
5. Staff should be educated on ADA requirements and how to assist customers with disabilities.
6. Check that the website is accessible.
7. Keep clear paths for navigation.
8. Use Braille and high-contrast visuals in your signage.
9. Consider the needs of those with sensory disabilities when designing and laying out your space.
10. To ensure accessibility, facilities should be evaluated and updated on a regular basis.
Are there ADA guidelines for restaurant bar areas?
Yes, according to ADA guidelines for restaurant bar areas, at least 5% of the seating (or at least one section) at the bar must be accessible. This could imply lowering the bar counter (between 28 and 34 inches from the floor) to accommodate wheelchair users. There should also be an accessible route to and from the bar area.
How does ADA affect restaurant kitchen design?
Because the ADA primarily applies to public and customer-facing areas of a restaurant, it has no direct impact on kitchen design. However, if disabled employees are hired, considerations for accessibility in the workplace, including the kitchen, should be made under Title I of the ADA, which covers employment. This could include accessible workstations, travel routes, and equipment to accommodate employees with disabilities.
Are there specific ADA training requirements for restaurant staff?
The ADA does not specify training requirements for restaurant employees, but it is beneficial for employees to be aware of ADA guidelines to provide an accessible and inclusive environment for customers with disabilities. This training could include learning how to assist customers with mobility issues, communicating effectively with customers who have hearing or vision impairments, and handling service animals. Training can assist in providing equal service to all customers while also adhering to ADA standards.
What are ADA requirements for emergency exits in restaurants?
Individuals with disabilities must be able to use emergency exits in restaurants, according to ADA requirements. This means that exits must have easily operable doors that are wide enough to accommodate wheelchairs, clear and accessible paths leading to the exits, and proper signage. Furthermore, any emergency systems or alarms should be accessible to people with hearing or vision impairments. In the event of an emergency, adherence to these standards is critical to ensuring the safety of all patrons.
How does ADA impact restaurant layout design?
The ADA has an impact on restaurant layout design by requiring accessible paths of travel, adequate space for wheelchair maneuvering, accessible seating and table arrangements, and compliant restrooms. This ensures that all areas, including entryways, dining areas, and service counters, are accessible to customers with disabilities. The layout must allow for easy navigation and comfort for all users.
Are counter service restaurants subject to ADA regulations?
Yes, counter service restaurants must follow ADA guidelines. They must provide accessible service counters and adequate space for wheelchair maneuvering. This includes providing accessible pathways to and from the counter and seating areas, as well as ensuring that a portion of the counter is at a wheelchair-accessible height.
What are the fines for not being ADA compliant in a restaurant?
The penalties for failing to comply with the ADA can be quite severe. The first offense can result in a civil penalty of up to $75,000, and subsequent offenses can result in fines of up to $150,000. However, the precise penalties can vary depending on a number of factors, including the nature of the violation and the jurisdiction. To avoid these penalties, restaurant owners must understand and follow ADA regulations.
How does ADA affect restaurant point of sale systems?
The ADA requires restaurant POS systems to be accessible to employees with disabilities. This can include placing POS systems at wheelchair-accessible heights, ensuring touchscreens are operable by people of varying physical abilities, and providing alternative methods of inputting information for those who cannot use a standard POS system. Customers must also ensure that payment and ordering systems are accessible to people with disabilities.
Are there ADA guidelines for restaurant sound levels?
The ADA does not provide specific guidelines for restaurant sound levels. It does, however, emphasize the importance of accessible environments, which includes considering the needs of people with hearing impairments. This can include making sure that background noise does not interfere with communication and, if necessary, providing accommodations such as assistive listening devices.
How does ADA impact restaurant waiting areas?
Restaurant waiting areas must be accessible to people with disabilities, according to ADA guidelines. This includes enough space for wheelchair maneuverability, some seating options that are accessible to those using wheelchairs or other mobility aids, and clear paths to and from the waiting area. Accessibility in these areas is critical if all customers are to receive equal service and accommodations.
Are there ADA requirements for restaurant flooring?
The ADA requires restaurant flooring to be stable, firm, and slip-resistant to ensure safe and accessible navigation for people with disabilities, including those who use wheelchairs or other mobility devices. Flooring should not create impediments to free movement. Compliance also requires proper maintenance to avoid hazards such as wet floors, loose rugs, or uneven surfaces.
How does ADA affect restaurant website design?
The Americans with Disabilities Act (ADA) has an impact on restaurant website design by requiring that they be accessible to people with disabilities. This includes ensuring that websites are navigable and usable by people with disabilities, such as those who use screen readers or struggle with motor skills. Text alternatives for non-text content, simple keyboard navigation, adequate color contrast, and clear, simple language are all important. Making web accessibility a priority not only complies with the ADA, but also improves the overall user experience for all customers.
What are ADA guidelines for restaurant self-service areas?
Individuals with disabilities must be able to use restaurant self-service areas, according to ADA guidelines. This includes ensuring that all self-service components, such as buffet tables and drink stations, are within reachable heights and depths for wheelchair users, with counters typically not exceeding thirty-six inches in height and side reach not exceeding forty-eight inches. Clear floor space for wheelchair maneuverability and clear paths of travel are also required. Compliance ensures that all customers can access and use these facilities independently.
How can a restaurant ensure ADA compliance in small spaces?
Prioritize clear, accessible pathways, consider adjustable or movable furniture to accommodate wheelchairs, use wall-mounted or fold-down seating options, and provide clear signage to ensure ADA compliance in small restaurant spaces. Create floor plans that maximize space efficiency while maintaining accessibility. For tailored solutions, consult ADA guidelines and a professional.
Are there ADA requirements for restaurant play areas?
Yes, ADA requirements for restaurant play areas include making them accessible to disabled children. This includes making accessible routes, appropriate surfacing, and play equipment available to children with various disabilities. Compliance is required to create an inclusive environment.
What are ADA guidelines for restaurant ramps and railings?
The ADA requires ramps in restaurants to have a slope ratio of no more than 1:12, a minimum width of 36 inches, and handrails on both sides if the ramp is more than six feet long. Railings should be between 34 and 38 inches high and easily graspable to ensure stability and support for people with disabilities. Compliance with these standards is required for safe and easy entry and exit from the restaurant.
How does ADA affect the height of restaurant condiment counters?
The ADA guidelines for restaurant condiment counters typically require them to be wheelchair accessible. This means that the counters should not be higher than thirty-six inches off the ground, allowing wheelchair users to reach and use the condiments comfortably. Compliance with these height requirements is critical for restaurant inclusivity and accessibility.
Are restaurant drive-throughs subject to ADA regulations?
Yes, restaurant drive-throughs are subject to ADA regulations. They must ensure accessibility for individuals with disabilities, which can include providing alternative means for ordering and picking up food for those who cannot use traditional drive-thru lanes. This ensures equal access to services for all customers.
How does ADA impact restaurant queuing systems?
Yes, ADA regulations apply to restaurant drive-throughs. They must ensure accessibility for people with disabilities, which may include alternative methods of ordering and picking up food for those who are unable to use traditional drive-thru lanes. This ensures that all customers have equal access to services.
What are ADA requirements for restaurant employee areas?
Restaurant employee areas must be accessible to employees with disabilities, according to ADA requirements. This includes providing accessible routes to and from the area, making workstations, equipment, and facilities accessible and usable, and ensuring that any employee restrooms provided are ADA-compliant. To ensure equal opportunities in the workplace, adjustments may be required based on the specific needs of employees.
Are there ADA guidelines for restaurant temperature control?
The ADA does not provide specific guidelines for restaurant temperature control. Maintaining a comfortable and consistent temperature, on the other hand, is part of creating an accessible and welcoming environment for all customers, including those with disabilities who may be more sensitive to extreme temperatures. Best practices for customer comfort should be followed in general.
How does ADA affect restaurant delivery services?
Because the ADA is primarily concerned with physical accessibility in places of public accommodation, it has no direct impact on restaurant delivery services. However, if a restaurant offers online ordering for delivery, the website or app must be accessible to people with disabilities, according to ADA digital accessibility guidelines. This ensures that all customers have equal access to services.
What are ADA guidelines for restaurant seating arrangements?
The ADA guidelines for restaurant seating arrangements are primarily concerned with ensuring accessible seating for people with disabilities. Here are a few highlights:
1. Restaurants must provide a reasonable number of accessible seating options dispersed throughout the dining area. These seats should be in areas that are not used for storage or as a pathway.
2. Table Heights: Tables in accessible seating areas should be thirty-four inches tall with a minimum knee clearance of twenty-seven inches high, thirty inches wide, and nineteen inches deep.
3. Clear Floor Space: There should be enough clear floor space around accessible tables for a wheelchair user. This area should be at least thirty by forty-eight inches.
4. Aisle Width: Aisles between tables should be at least thirty-six inches wide to accommodate a wheelchair user.
5. Accessible Routes: Accessible routes should connect accessible seating areas to entrances and accessible bathrooms.
6. Wheelchair Seating: Restaurants should make at least 5% of their dining surfaces (such as tables) accessible to people in wheelchairs.
7. Booths and Fixed Seating: If booths or fixed seating are provided, they should be accessible with adequate clear floor space and table heights.
8. Reservations: When customers make reservations, restaurants should provide accessible seating options, and these seats should be held until the reservation time.
9. Signage: Use signage to identify accessible seating areas.
It is important to note that these guidelines are intended to ensure that people with disabilities have the same dining opportunities as everyone else. Local and state accessibility regulations, which may have additional requirements, should also be considered by restaurants.
How can a restaurant improve ADA accessibility in older buildings?
Improving ADA (Americans with Disabilities Act) accessibility in older buildings, particularly restaurants, entails a number of critical steps:
Accessibility of the Main Entrance: Ensure that the main entrance is wheelchair accessible. Consider installing a ramp if the main entrance has steps. It is also critical to have door handles that are simple to use for people who have limited hand mobility. Here is a brief list of things you can do to improve ADA accessibility in older building:
- Interior Navigation: The interior should be wheelchair accessible. This includes having wide enough aisles and doorways, as well as arranging tables with enough space between them. Avoid using only high-top tables; include some lower tables that are accessible to wheelchair users.
- Restroom Accessibility: Restrooms should be accessible, with at least one wheelchair-accessible stall. This includes grab bars, enough space to move around, and appropriate sink heights.
- Parking and Pathways: If the restaurant has a parking lot, accessible parking spaces should be located near the entrance. The path to the restaurant should be level and free of obstructions.
- Plans for Emergency Evacuation: Make accessible emergency exits and clearly mark them. Employees should also be trained on how to assist customers with disabilities in an emergency.
- Menu Accessibility: Provide menus in a variety of formats, such as braille or large print, and make sure that signage is clear and easy to read.
- 6. Staff Training: Inform employees about ADA compliance and how to assist customers with disabilities. Understanding how to interact respectfully and effectively is part of this.
- Consultation with Experts: It is recommended that you consult with ADA experts or organizations that represent people with disabilities. They can offer useful insights and recommendations tailored to your building and business.
- Regular Maintenance: Check and maintain accessibility features on a regular basis to ensure they remain usable and compliant.
- Establish a feedback mechanism through which customers with disabilities can provide feedback on accessibility. This feedback can help guide future improvements.
It is critical to remember that ADA compliance entails more than just physical accessibility; it also entails creating an inclusive and welcoming environment for all customers.
What are ADA guidelines for touch screen ordering in restaurants?
The ADA requires that touch screen ordering in restaurants be accessible to wheelchair users in terms of height and reach, have user-friendly interfaces with options for visual and audio assistance, and be sensitive enough for users with limited dexterity.
How does ADA affect the size of restaurant bathroom stalls?
The ADA mandates that restaurant restrooms be large enough to accommodate wheelchairs, with a minimum width of sixty inches and enough space for maneuverability and accessibility features such as grab bars.
Are there ADA requirements for restaurant waiting lines?
Yes, ADA requirements for restaurant waiting lines include a minimum width of thirty-six inches for wheelchair accessibility, level flooring, and a layout that does not require wheelchair users to travel a longer path than other patrons.
What are ADA guidelines for emergency communication in restaurants?
To accommodate individuals with hearing or visual impairments, the ADA guidelines for emergency communication in restaurants require the inclusion of both visual and audible alarms, as well as emergency instructions and exits that are accessible and clearly marked for all patrons, including those with disabilities. Furthermore, staff should be trained to assist patrons with disabilities in the event of an emergency.
How can a restaurant's layout impact ADA compliance?
The layout of a restaurant has a significant impact on ADA compliance because it determines the accessibility of pathways, seating, and facilities for people with disabilities, with features such as wide aisles, appropriately spaced tables, and accessible restrooms and entrances.